A spacious, four bedroom, semi-detached property located in the popular area of Whipton, with the advantage of no onward chain. The property benefits from a garage and parking space to the front, along with an enclosed garden to the rear. Internally, the accommodation briefly consists of an entrance porch and hallway, a kitchen, dining room, family room and downstairs cloakroom, as well as a spacious living room with an adjoining lobby and shower room, offering the possibility of a further bedroom if preferred. Upstairs is the main family bathroom and the four bedrooms, with an en suite shower room to the master.
Whipton itself enjoys a wide range of amenities, including GP and dental surgeries, primary and secondary schools, various shops and parks, as well as good links into the city centre, with regular bus routes in and out of the city, plus Polsloe Bridge train station.
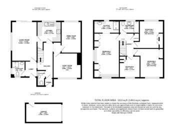
Ground Floor
The front door opens into the entrance porch and hallway which provides access into the kitchen, dining room, family room and downstairs cloakroom, and also includes stairs rising to the first floor incorporating storage below. The family room could be used for a number of purposes, and features a window to the front aspect allowing ample natural light into the space, plus fitted shelving to an alcove. The dining room is a further reception room, complemented by a window to the rear aspect with a view across the garden.
The kitchen contains a range of matching wall and base units with fitted worktops, a tiled splashback and a 1.5 bowl stainless steel sink and drainer unit with a mixer tap over. Space is provided for a number of under counter appliances, and there is also recessed storage space under the stairs, along with a window to the rear aspect. A door opens to the sizeable living room, which could also be used as a large guest room, offering a dual aspect with a window to the side and sliding doors opening directly out to the garden. A lobby leads into the convenient downstairs shower room which comprises a double shower cubicle, a pedestal wash basin with a mixer tap over, a close-coupled WC and frosted windows to the side and front aspects.
First Floor
The first floor accommodates the four bedrooms, the en suite and the bathroom, and the landing also includes a built-in cupboard. The master bedroom is a good-sized double room featuring ample fitted storage, as well as windows to both the front and rear aspects. An archway opens to the en suite shower room which includes a double shower cubicle, a wash basin with a mixer tap over and set on a large vanity unit, plus a frosted window to the rear aspect.
Bedrooms two and three are both further double rooms, each furnished with built-in storage, and windows to the front/rear aspect.
The main bathroom comprises a close coupled WC, a wash basin with a mixer tap over and vanity unit below, plus a bath with a mixer tap and shower over. A frosted window faces the rear aspect.
Lastly, the fourth bedroom is a well-proportioned single room featuring fitted storage and a window to the front aspect.
Garden, Garage & Parking
Doors open out to the generous enclosed rear garden which features a patio area leading from the living room, offering an ideal space for outdoor seating. The remainder of the garden is mostly laid to lawn and is well-stocked with a variety of mature trees and shrubs to the border. There is also a summerhouse to the rear, and a gate allows access to the front of the property where the garage and driveway are situated.
Property Information
Tenure: Freehold. Council tax band: D. EPC: C.
