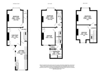
Entrance Hallway
The front door opens to an entrance vestibule leading to the hallway, where the doors open to Bedroom 1, the living room and the kitchen.
Bedroom 1 12' 1'' x 11' 2'' (3.68m x 3.41m)
Located on the ground floor, the bedroom comes furnished with a double bed, wardrobe, chest of drawers, desk, and bed-side table.
Living Room 12' 7'' x 9' 5'' (3.83m x 2.88m)
A door from the hallway leads into the living room where there is a fireplace and two storage cupboards. Another door leads from the living room into the kitchen.
Kitchen 20' 1'' x 8' 5'' (6.12m x 2.57m)
The kitchen comes complete with two ovens, a hob, a tall fridge and and chest freezer, as well as a washing machine, tumble drier and a dishwasher. There is a door that leads out to the low maintenance garden.
Bedroom 2 12' 0'' x 10' 7'' (3.67m x 3.22m)
Located on the first floor, the bedroom comes furnished with a double bed, wardrobe, chest of drawers, desk, and bed-side table.
Bedroom 3 12' 6'' x 9' 6'' (3.80m x 2.90m)
Located on the first floor, the bedroom comes furnished with a double bed, built-in storage cupboard, chest of drawers, desk, and bed-side table.
Shower Room 8' 8'' x 3' 11'' (2.63m x 1.19m)
Located on the first floor, the shower room consists of a shower and a wash hand basin with a small circular mirror on the wall.
Cloakroom 2' 9'' x 4' 3'' (0.83m x 1.3m)
Located on the first floor, the cloakroom consists of a toilet and wash hand basin.
Bathroom 6' 6'' x 8' 9'' (1.99m x 2.66m)
Located on the first floor, the bathroom consists of a bath with shower over, a toilet, and a wash hand basin, as well as a built-in storage cupboard.
Bedroom 4 10' 0'' x 14' 10'' (3.05m x 4.52m)
Located on the second floor, the bedroom comes furnished with a double bed, wardrobe, chest of drawers, desk, and bed-side table.
Bedroom 5 10' 5'' x 9' 6'' (3.18m x 2.90m)
Located on the second floor, the bedroom comes furnished with a double bed, wardrobe, chest of drawers, desk, and bed-side table.
Five double bedrooms available to rent in this shared student house for Academic year 2026/27. This spacious student house is located in an ideal location for Streatham University site.
The property briefly comprises five double bedrooms, a lounge, a kitchen, and two bathrooms, as well as a separate cloakroom. The accommodation is split over three floors and there is also a low maintenance garden to the rear.
Rent £645 per person per month (bills excluded), £3,225 for the whole property per month.
11 Month Tenancy
Subject to full referencing and affordability checks.
A Holding Deposit of one week’s rent will be required to reserve the property.
A Tenancy Deposit of five weeks’ rent will be required should an application be successful.
For full details of our fees please visit our website: https://www.southgateestates.co.uk/lettings/
