Southgate Estates are delighted to present to market this lovely 2 bedroom Victorian terrace property in the highly sought-after area of Heavitree. Heavitree Pleasure Ground is a short walk away with children’s play area, tennis courts, basketball court and a cafe; there is plenty of green space for dog walking as well. Heavitree itself also offers many shops, cafes and public houses as well as highly regarded schools and a GP surgery. There is a regular bus service taking you into the city centre and further afield.
This lovely 2 bedroom property is well laid out with period features, high ceilings with coving and picture rails, and stripped wooden doors. The good sized living accommodation briefly comprises a living room with bay window to front aspect, and a well-appointed kitchen/diner to the rear with understairs storage. Upstairs there are 2 double bedrooms with built-in storage and a spacious bathroom suite. This property also benefits from a recent new roof.
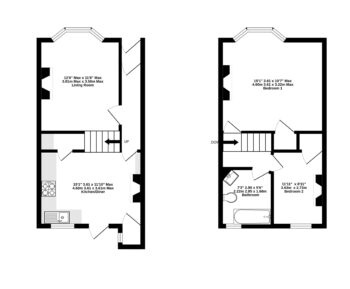
Ground Floor The front door leads into an entrance vestibule with period tile flooring, and a further door leads into the entrance hallway. A wooden door leads into the living room with a double glazed bay fronted window, an exposed brick fireplace and a tiled hearth. From the entrance hallway, a wooden door leads into the spacious kitchen/diner. The well-appointed modern kitchen has a built-in gas hob and cooker with an extractor hood over as well as an undercounter built-in fridge. The kitchen also benefits from a built-in dishwasher and a door that opens to a spacious walk-in understairs storage area housing the washing machine. The dining area has an exposed brick chimney breast with a wooden built-in dresser unit to the side. A separate cupboard houses the boiler. Lastly, a uPVC double glazed door opens out onto the enclosed rear garden.
Upstairs From the entrance hallway, stairs lead to the upstairs
landing, where wooden doors lead to the main bedroom, bathroom and bedroom 2. The
main bedroom, situated to the front of the property, benefits from a double-glazed
bay window to front aspect, a decorative fireplace, and a built-in storage
cupboard. The good-sized bathroom suite has a freestanding enamel bath with
mixer tap and shower head, a high-level WC, a pedestal wash hand basin, and also
a radiator with heated towel rail. Lastly, the second double bedroom to the
rear of the house features an attractive exposed brick chimney breast and a
separate built-in cupboard. A uPVc double glazed window overlooks the garden.
Outside To the rear of the property is a enclosed low maintenance garden with a deck area leading from the kitchen door. The garden also benefits from an artificial turf lawn, a wooden storage shed and gated access to a service lane.
Property Information Tenure: Freehold. Council tax band B.
