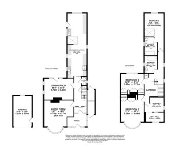
Ground Floor
The front door opens to a large enclosed porch with windows to the front and side aspects, and a feature leaded door opening to the hallway. The hallway allows access to the spacious kitchen breakfast room, the living room, dining room and convenient downstairs cloakroom, and stairs rise to the first floor incorporating storage below. The inviting living room is complemented by a curved bay window to the front aspect allowing ample natural light to the room, and also includes picture rails and a solid wood fireplace surround. The separate dining room offers leaded windows and a door leading out to the garden, as well as further windows to the side aspect. The impressive kitchen breakfast room has been extended by the current owners to provide extra space. There are a number of wall and base units with quartz worktops, and a stainless steel double sink and drainer unit with a mixer tap over. Space is provided for a range cooker, a dishwasher and a fridge freezer, and windows face the side and rear aspects. To the rear of the kitchen is a utility area which provides further cupboard space, and a door to the garden.
First Floor
Stairs rise to the large first floor landing which accommodates the four bedrooms and the family bathroom. The master bedroom houses the lift from the ground floor, and also benefits from an en suite bathroom with a wet room floor, plus a window overlooking the garden. The second and third bedrooms are further doubles, both featuring ample built-in storage. Finally, the fourth bedroom is divided into two sections, with windows to the front and side aspects. The family bathroom comprises a bath with a shower over, a wash basin with a mixer tap over and vanity unit below, plus a hidden cistern WC.
Garden
The extensive rear garden is a prime feature of the property, with delightful wildflower beds, and various specimen trees. Partly-walled, a central path extends to the rear border where there is a greenhouse and impressive neighbouring poplar trees which provide a more secluded feel. The path is lined with sections of lawn, and there is also a summerhouse, plus a gate allowing side access.
Outside Store
At the side of the property there is a useful outside store which can be accessed from both the front and rear of the house.
Garage & Driveway Garage Size: 15' 10'' x 10' 0'' (4.82m x 3.04m)
To the left of the property, there is access to the shared driveway and the garage which has double doors to the front, a door to the garden and is serviced by power and lighting, with space to park in front. There is also a further area for parking at the front.
Property Information
Tenure: Freehold. Council tax band: E.
A substantial period detached property of approx. 2000 sq.ft, conveniently positioned in the highly-desirable St Leonard’s location of Buckerell Avenue. This delightful four bedroom home comes with a generously sized and beautiful garden to the rear of the property, as well as a private driveway at the front of the house and garage to the rear.
Situated within in the parish of St. Leonards, the property is very close to the Riverside Valley Park and is within easy walking distance of County Hall and the RD&E Hospital. There is also good access to bus routes and to Exeter City Centre. Internally, the well-proportioned accommodation offers spacious room sizes throughout and has undergone a series of improvements to aid accessibility to both floors, including a two-storey extension to the rear (adding 32m2 extra internal space to the property). The ground floor comprises an entrance porch leading into a hallway with doors to a bay fronted living room, separate dining room, downstairs cloakroom, and a significantly extended kitchen breakfast room by the current owners, with a utility area to the rear. Upstairs, there are four bedrooms, with an en suite to the master, and a family bathroom.
Built in 1932, the property enjoys many character features with large curved bay windows, wood panelling and leaded windows. Also offered with the benefit of no onward chain, internal viewing is highly recommended in order to fully appreciate all that this elegant property offers.
