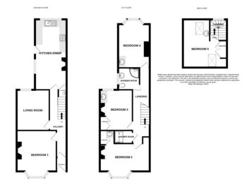
Entrance Hallway
A front door opens into an entrance hallway providing access to bedroom 1, the living room and the large kitchen diner. Stairs also rise to the first floor.
Bedroom 1 12' 1'' x 11' 10'' (3.69m x 3.6m)
A spacious fully furnished bedroom with a uPVC double glazed bay window to the front aspect and hardwood floorboards.
Living Room 12' 1'' x 9' 9'' (3.68m x 2.98m)
A great living space with corner sofa, TV and cupboards to the alcoves. There is also a uPVC double glazed window to the rear.
Kitchen Diner 20' 11'' x 9' 5'' (6.38m x 2.86m)
A spacious open-plan kitchen diner containing a range of matching wall and base units, a tiled splashback, a stainless steel 1.5 bowl sink and drainer unit. Appliances include a double oven with gas hob, a washing machine, a tumble dryer, a tall fridge and additional tall freezer. There is also an under stair WC, a door to the rear garden and ample room for dining furniture.
Stairs and Landing
Stairs rise to the first floor landing which provides access to a further three bedrooms, the shower room, and stairs to the second floor.
Bedroom 2 14' 5'' x 9' 10'' (4.4m x 3m)
A large furnished bedroom benefitting from an in-built wardrobe, a sink and base unit, a uPVC double glazed bay window and hardwood floors.
Bedroom 3 12' 2'' x 9' 7'' (3.7m x 2.93m)
A cosy furnished double bedroom benefitting from a sink and base unit, built in wardrobe, feature fireplace, hardwood floors and a uPVC double glazed window to the rear.
Shower Room 6' 7'' x 5' 7'' (2m x 1.7m)
A shower room comprising a shower cubicle, a pedestal wash hand basin, a low level WC and a window to the side aspect.
Bedroom 4 13' 1'' x 9' 6'' (4m x 2.9m)
A further furnished bedroom at the rear with a uPVC double glazed bay window overlooking the courtyard garden and a sink and base unit.
Bedroom 5 8' 2'' x 11' 6'' (2.49m x 3.5m)
Stairs rise to the top floor bedroom which benefits from a sink, an in built storage cupboard and two double glazed velux windows.
Rear Courtyard Garden
With rear access and a shed, this courtyard is laid to concrete for easy maintenance.
Five double bedrooms available to rent in this shared student house for Academic year 2025-2026. The property is situated within easy walking distance of the RD&E hospital, St Luke’s Campus and many local amenities in Heavitree and St Leonard’s. There are also good transport links with local bus routes in and out of Exeter.
Internally, the accommodation comprises an entrance hallway, living room, double bedroom, and a kitchen diner. Upstairs are three good-sized double bedrooms and the main bathroom on the first floor. There is a further double bedroom in the attic space. The property benefits from an enclosed low-maintenance garden to the rear. Each room is furnished with a double bed, wardrobe, desk and chest of drawers.
With such a convenient location and the space provided, this property is not to be missed and further viewing is highly recommended.
Rent £560 per person per month, approximately £129 per person per week (bills excluded), £2800 for the whole property per month.
11 Month Tenancy.
Subject to full referencing and affordability checks.
A Holding Deposit of one week’s rent will be required to reserve the property.
A Tenancy Deposit of five weeks’ rent will be required should an application be successful.
For full details of our fees please visit our website: https://www.southgateestates.co.uk/lettings/
